Calefón sin piloto
Ante el lanzamiento al mercado del nuevo calefón Ecotermo modelo Ionizado, queremos hacerles llegar a todos nuestros Services autorizados, un detalle de las causas más probables de un mal funcionamiento de la unidad y sus soluciones.
Síntoma: LA UNIDAD NO ENCIENDE.
Posible causa: Pilas agotadas.
Solución: Verificar el estado de las pilas con un tester. La tensión tomada sobre la unidad orta-pila debe ser de 3 Volt.
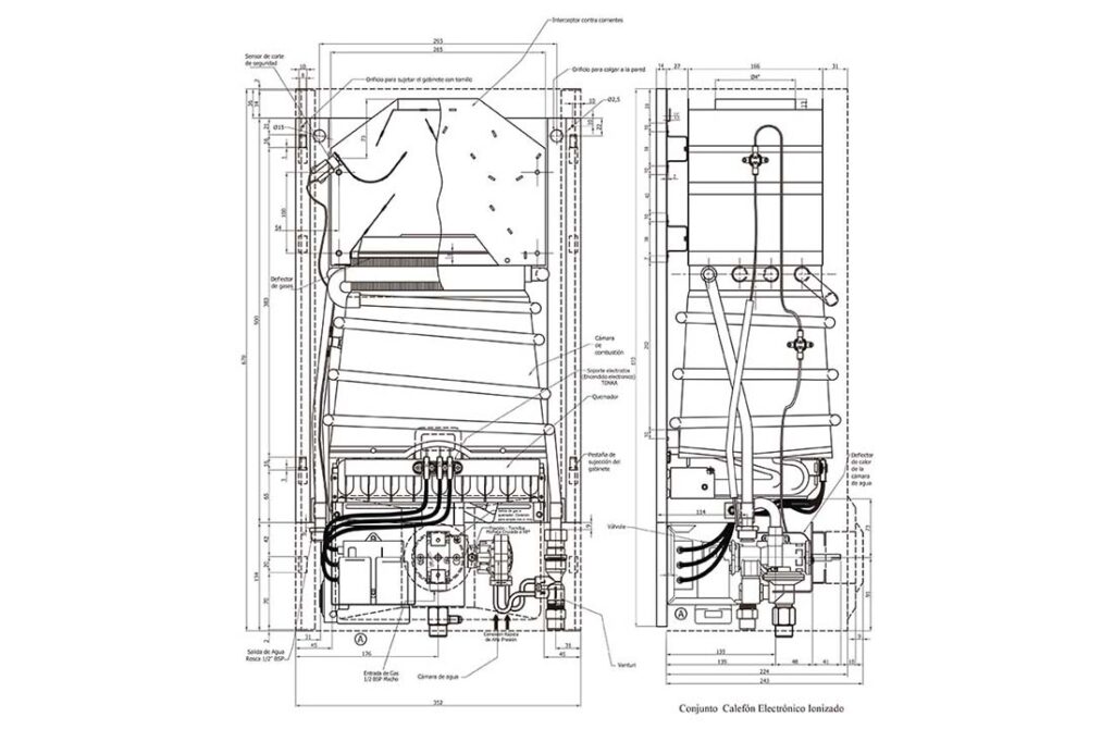
Haga click para agrandar la imagen.
Síntoma: LA UNIDAD NO ENCIENDE.
Posible causa: Pilas mal colocadas.
Solución: La polaridad correcta de la pila derecha va con su polo positivo (+) hacia arriba y la de la izquierda con su negativo (-) hacia arriba.
Haga click para agrandar la imagen.
Síntoma: LA UNIDAD NO ENCIENDE.
Posible causa: Polaridad de los cables.
Solución: Ver que los cables de conexión que van al porta pilas respeten la polaridad y se conecte el terminal ROJO al (+) y el NEGRO al (-)
Haga click para agrandar la imagen.
Síntoma: LA UNIDAD NO ENCIENDE.
Posible causa: No genera chispa.
Solución: Puede deberse al mal funcionamiento de los sensores de tiraje inverso y sobre temperatura del intercambiador. Verifique que éstos sean normal cerrado y tengan continuidad. Como alternativa podemos cortocircuitar sus terminales para verificar esta falla.
Haga click para agrandar la imagen.
Síntoma: LA UNIDAD NO ENCIENDE.
Posible causa: Varía el caudal.
Solución: Verifique el correcto caudal en el Venturi; éste es de caudal fijo no regulable. Para un correcto funcionamiento debe marcar un valor de 5 lts con una variación de más menos 0,5 lts por minuto.
Haga click para agrandar la imagen.
Síntoma: LA UNIDAD NO ENCIENDE.
Posible causa: Filtro tapado.
Solución: Verificar que el filtro interior que se encuentra dentro del Venturi no esté obstruido; si así fuera, limpiarlo y reposicionarlo.
Haga click para agrandar la imagen.
Síntoma: LA UNIDAD NO ENCIENDE.
Posible causa: Válvula de agua averiada.
Solución: Retirar los cables que van conectados a la válvula y verificar con el téster que haya continuidad a través del interruptor cuando circula agua; si así no lo hiciera, el interruptor puede estar dañado o la membrana puede no actuar porque se ha roto o dilatado. Cambiar la unidad cualquiera sea el defecto detectado.
Haga click para agrandar la imagen.
Síntoma: CONTROL DEL GENERADOR.
Posible causa: Puesta a tierra.
Solución: Verificar la correcta puesta a tierra de la unidad. Colocar una punta del tester sobre el anillo de tierra y la otra sobre el tornillo de fijación del tornillo bujía: Debe indicar continuidad.
Haga click para agrandar la imagen.
Síntoma: CONTROL DEL GENERADOR.
Posible causa: Sensor.
Solución: Salta chispa, se enciende y luego se apaga. Verificar que el sensor (la bujía del medio) esté correctamente posicionado y que su cable corresponda a la posición (S) del generador, que además le pegue correctamente la llama y que el cable que se inserta en ella esté bien conectado. Un falso contacto puede hacer que no funcione. Verificar con el tester la resistencia entre dicho electrodo y la tierra: debe dar 1 colocando el selector en la escala más alta de resistencia (OHM).
Haga click para agrandar la imagen.
Síntoma: CONTROL DEL GENERADOR.
Posible causa: Electrodos.
Solución: No salta chispa. Verificar que entre las dos bujías de los extremos del conjunto que se conectan con (HV1 y HV2), su resistencia medida con un tester puesto en la escala más alta (OHM), debe indicar un valor muy próximo a cero.
Haga click para agrandar la imagen.
Síntoma: CONTROL DE LA ELECTROVÁLVULA.
Posible causa: No funciona.
Solución: Para su verificación desmontamos su terminal y verificamos los siguientes valores: entre el cable negro (común) y el rojo, los valores deben estar comprendidos entre 6,6 y 5,7 OHM y entre el negro y el amarillo los valores deberían ser de 660 a 570 OHM.

Haga click para agrandar la imagen.
Haga click para agrandar las imágenes.















